Ref. 26017
Grundlagen
- Kategorie: 100.000€ - 200.000€
- Typ: Einfamilienhaus
- Status: Zu verkaufen
- Schlafzimmer: 2
- Badezimmer: 1
- Wohnzimmer: 1
- Zimmer insgesamt: 4
- Esszimmer: 1
- Stockwerk: 1
- Küche: 1
- Baujahr: 1970
- Zuletzt renoviert: 2010
Größe
- Fläche, m²: 100 m²
- Grundstücksfläche, m²: 5159 m²
Stadtwerke
- Strom: Ja
- Wasser: Ja
- Gas: Ja
- Abwasser: Ja
Beschreibung
-
Beschreibung:
Zum Verkauf steht hier ein top gepflegtes Einfamilienhaus nur rund 15 Minuten von Marcali entfernt.
-
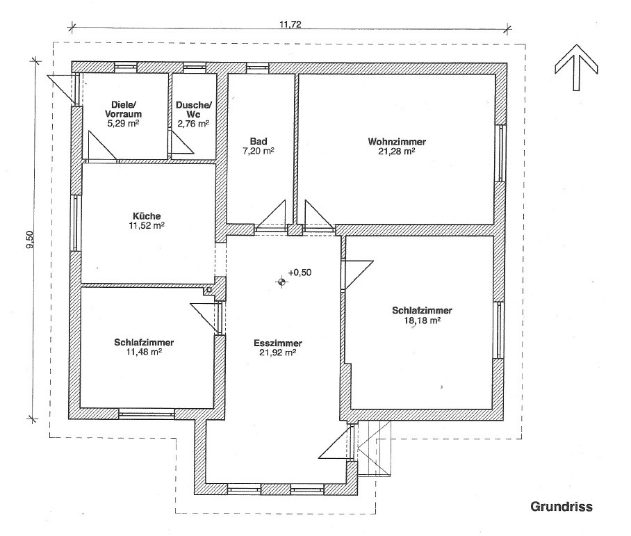
Das Haus kommt mit ca. 100 m² Wohnfläche die sich auf einen Wintergarten, einem Vorraum, einem Duschbad, einer Küche, einem Esszimmer, dem Badezimmer sowie einem Wohnzimmer und den zwei Schlafzimmern aufteilt.
Im Schlaf- und im Wohnzimmer sind jeweils Klimaanlagen installiert. An den Fenstern befinden sich Rollläden sowie Fliegengitter.
Weitere Extras die diese Immobilie zu bieten hat ist unter anderem ein elektrisches Einfahrtstor, eine Entkalkungsanlage, Sat TV sowie Abstellräume und ein Kaminofen.
Das Haus selbst wurde 1970 erbaut und wurde komplett zwischen 2005 und 2010 kernsaniert.-
Das Grundstück kommt mit geräumigen ca. 5159 m² auf dem des Weiteren eine Garage, ein Brunnen, ein Pool mit 5x2 Meter inklusiver Überdachung und ein Grillpavillon mit Sommerküche steht.
-
Die Immobilie steht in einer schönen Ortschaft auf der Südseite des Balaton nur ca. 15 Minuten von Marcali entfernt. Vom Haus zur nächsten Einkaufsmöglichkeit sind es ca. 1000 Meter. An den Balaton selbst benötigen Sie ca. 15 Minuten und nach Keszthely ca. 20 Minuten mit dem Auto.
Alle Beschreibung anzeigen
Standort
- Entfernung zum Balaton: 10 - 20 km
- Komitat: Somogy
Gebäudedetails
- Heizung: Gasheizung, Zentralheizung
- Bodenbelag: Fliesen, Laminat, Sonstige
- Parken: Auf dem Grundstück, Garage

